Gallery
Progetto
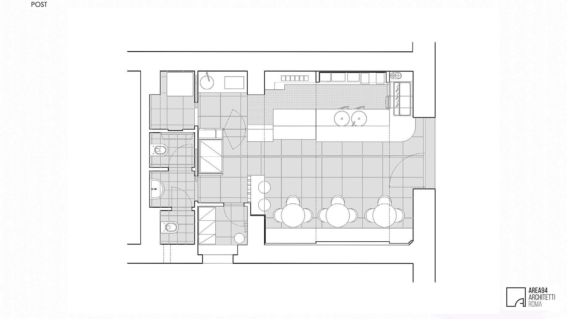
Post-Operam
Ante-Operam
Bar Via Appia
RISTRUTTURAZIONE TOTALE
Ristrutturazione totale di un piccolo locale commerciale sito in zona San Giovanni a Roma.
La richiesta del committente era quella di creare uno spazio moderno e vivace , adatto alla fruizione di un pubblico giovane e giovanissimo, attraverso lo studio di un branding accattivante.
Il pochissimo spazio a disposizione ha reso indispensabile creare un’area bar che potesse contenere il materiale necessario sfruttando per intero l’altezza dell’unica parete a disposizione; La piccola zona restante per la somministrazione è stata progettata e realizzata su misura al fine di poter ospitare un maggior numero di clienti.
Elemento architettonico e protagonista dello spazio è un “nastro giallo” che da seduta per i clienti si trasforma in soffitto e poi in struttura portabottiglie per il retro banco del bar, fungendo anche da fondale con tanto di hashtag per le foto social da condividere in rete.
I grandi corpi illuminanti colorati, progettati e realizzati su misura, contribuiscono a movimentare la superficie dei soffitti.
Lo stile creato rievoca una ambientazione pop, ricca di dettagli colorati in organica connessione tra loro.
- Realizzazione Paralumi su progetto: Patrizia Sini – Sini Paralumi
Cliente:
Bar Via Appia
Data:
Marzo, 2019
















