Gallery
Progetto
Post-Operam
Ante-Operam
Laboratorio di idee
Ristrutturazione Totale
Immerso nello storico quartiere romano del Pigneto, all’interno del verde e silenzioso cortile di un fabbricato delle Ferrovie dello Stato dei primi anni del novecento, è stato recuperato un locale da tempo abbandonato riconvertendolo in uno studio di architettura. Da prima destinato a lavatoio comune e solo negli ultimi anni a laboratorio di pasticceria, il locale versava in uno stato di avanzato degrado. In queste condizioni lo spazio aveva perso la sua funzione originaria privando gli abitanti dello stabile di un importante centro di aggregazione.
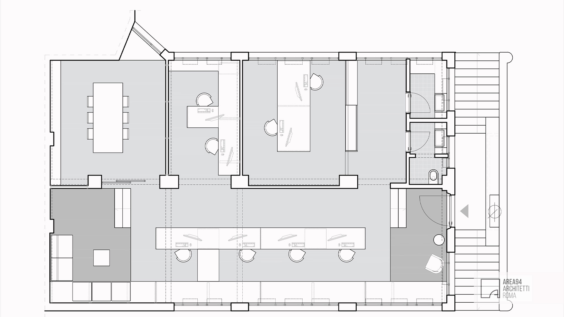
Dal carattere dello spazio e dal concetto di socializzazione legato alla funzione di lavatoio per il quale era stato concepito, è nata l’idea di creare un open space nel quale lavorare in armonia e condividere spazi ed idee senza il bisogno di realizzare barriere materiali. La volontà è stata quella di recuperare ed evidenziare le tracce architettoniche preesistenti riportando a nudo la struttura originaria in cemento armato e restaurando gli elementi che caratterizzavano lo spirito del luogo come gli infissi in ferrofinestra e gli impianti a vista.
Lo studio è stato concepito come un grande ambiente in cui la struttura portante ne scandisce spazi e funzioni e in cui le poche divisioni, create attraverso bassi filtri in muratura, permettessero la percezione totale dell’ambiente; unica eccezione è rappresentata dalla sala riunioni in cui l’utilizzo di pareti vetrate garantisce comunque la continuità spaziale.
Sfruttando l’altezza degli ambienti sono state realizzate due zone sopraelevate, una che disegna l’area d’ingresso permettendo al fruitore una visione globale del locale e l’altra, contrapposta sul fondo, ricalca la posizione delle vasche dei lavatoi rievocando i momenti comunitari che le animavano accogliendo la zona relax.
Nello spazio principale due elementi paralleli attraversano longitudinalmente l’ambiente, realizzando al centro il grande tavolo di lavoro e da un lato un piano che accoglie dei mobili contenitori e che alle estremità, in corrispondenza delle zone sopraelevate, si trasforma in seduta.
Tutti gli arredi, realizzati in legno naturale , sono stati concepiti e disegnati in relazione ad un sistema complessivo di richiami visuali e di allineamenti. Il sistema di illuminazione, nell’ottica di questa geometria, è caratterizzato da nude lampade sospese a diverse altezze, e realizzato con cavi a vista che, attraversando lo spazio, disegnano su pareti e soffitto una trama decorativa lineare.
Il progetto dello studio “Prenestina 94” rappresenta un esempio di recupero e rifunzionalizzazione di uno dei tanti spazi dismessi nei nostri tessuti urbani, attraverso la rilettura in chiave moderna non solo dei preesistenti elementi architettonici ma anche degli aspetti sociali ad essi legati.
- Esecuzione lavori: Ditta ESTRODESIGN srl
- Antonello Mazzei
Cliente:
Laboratorio di idee
Data lavori:
2019













