Gallery
Progetto
Post-Operam
Ante-Operam
Appartamento a Garbatella
Ristrutturazione
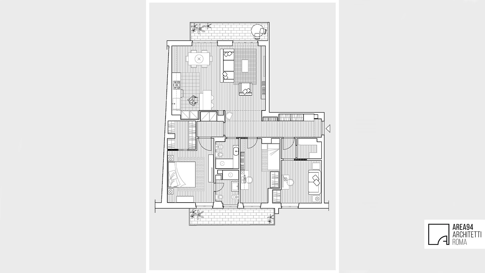
L’appartamento, precedentemente mai ristrutturato, versava in uno stato di evidente degrado; inoltre possedeva un solo bagno e la cucina si trovava sul lato opposto rispetto al soggiorno, secondo un desueto modo di vivere la casa caratteristico degli anni della costruzione.
La nostra sfida è stata quella di stravolgere la distribuzione interna traslando la cucina dalla parte opposta della casa per integrarla al soggiorno pranzo, creando una armoniosa e ampia zona living e creando un secondo bagno per rispondere alle nuove esigenze della committenza.
Ogni centimetro di spazio è stato sfruttato al meglio grazie alla progettazione mirata delle falegnamerie, realizzando diversi spazi di servizio, un’area lavanderia ed una grossa cabina armadio.
- Esecuzione lavori: Sonetica Impianti Srl
- Francesco Lamonaca
Cliente:
Ristrutturazione totale di un appartamento nei pressi del cuore della Garbatella storica, per una giovane coppia con figlio.
Data:
Febbraio, 2020
























